According to NYC law, you don't have to pay a broker fee unless you actually hired a broker.
Learn moreFuture listing
This apartment is not available yet, but it can be matched to you before it hits the market.
Rent-stabilized apartments
This building has apartments that entitle you to a renewal and limited rent increases.
Good cause building
This building guarantees a lease renewal and caps rent increases, if you follow all the terms of your lease.
About this building
Lenox Hill
503 East 78 Street, Manhattan, NY 10075
96 Units • 6 Floors
4.7(4)
Rent Stabilized Units: Yes
Good Cause Eviction: Yes
Evictions: 2
Litigation History: Yes
1 Year Bedbug History: No
Have a question about this building? Ask current and former tenants what they think.
Questions are typically answered within 20 minutes. We'll notify you!
Description
Located in the desirable Lenox Hill neighborhood, this studio apartment offers convenient access to local shops, dining, and public transportation, making city living both comfortable and efficient. Enjoy the vibrant community atmosphere with nearby parks, cultural attractions, and everyday essentials all within reach.
Apartment features:
- Pets allowed
- Air conditioning
Building amenities:
- Laundry room
- Live-in superintendent
- Package room
* This listing might require a $20 application fee, 1 month deposit, 1 month's rent, amenity fees, guarantor fee or renter’s insurance.
* Photos may depict similar units. Specific features and views may differ.
* Contact our leasing team today for current availability and incentive details.
* Price reflects net effective rent.
Searching for an apartment for rent in Manhattan, New York City?
Explore tenant reviews and building data for 503 East 78 Street #1F in Lenox Hill. See pricing history, violations, landlord info, and more before you rent.
Amenities
Building amenities
Unit amenities
Policies
Building Insights
Check if this building has infestation issues and make the right choice.
Most Recent Rodent Inspections for 503 East 78 Street
This building had reported rodent activity at the last rodent inspection.
Inspection History From The Past 6 Months for 503 East 78 Street
Rat Activity
FILE DATE:
Aug 28, 2024
Read full history
Listing History
Explore Lenox Hill
Loading...
Similar Listings
Future
Rent-stabilized
3.5(4)
Lenox Hill
344 East 63 Street #2BManhattan, NY
$3,153
Studio•1 bath•Est. Dec 2025
Future
Rent-stabilized
3.7(3)
Lenox Hill
531 East 78 Street #5AManhattan, NY
$2,904
Studio•1 bath•Est. Dec 2025
Future
Top rated
4.4(10)
Lenox Hill
523 East 78 Street #5AManhattan, NY
$2,881
Studio•1 bath•Est. Dec 2025
Future
Rent-stabilized
2.9(2)
Lenox Hill
504 East 79 Street #5AManhattan, NY
$2,819
Studio•1 bath•Est. Dec 2025
Future
Rent-stabilized
2.1(1)
Lenox Hill
1481 1 Avenue #5EManhattan, NY
$2,789
Studio•1 bath•Est. Dec 2025
Future
Rent-stabilized
3.3(2)
Lenox Hill
536 East 79 Street #2DManhattan, NY
$2,789
Studio•1 bath•Est. Dec 2025
Future
Rent-stabilized
3.7(3)
Lenox Hill
531 East 78 Street #2FManhattan, NY
$2,698
Studio•1 bath•Est. Dec 2025
Future
Rent-stabilized
2.3(1)
Lenox Hill
417 East 72 Street #3DManhattan, NY
$2,668
Studio•1 bath•Est. Dec 2025
Future
Rent-stabilized
4.3(1)
Lenox Hill
517 East 77 Street #1DManhattan, NY
$2,656
Studio•1 bath•Est. Dec 2025
Future
Rent-stabilized
4.3(2)
Lenox Hill
555 East 78 Street #2AManhattan, NY
$3,389
Studio•1 bath•Est. Jan 2026
Future
Rent-stabilized
3(1)
Lenox Hill
490 East 74 Street #3CManhattan, NY
$2,904
Studio•1 bath•Est. Jan 2026
Future
Rent-stabilized
3(1)
Lenox Hill
501 East 78 Street #4DManhattan, NY
$2,904
Studio•1 bath•Est. Jan 2026
Future
Rent-stabilized
4.6(4)
Lenox Hill
516 East 79 Street #3GManhattan, NY
$2,864
Studio•1 bath•Est. Jan 2026
Future
Rent-stabilized
3.5(3)
Lenox Hill
1420 York Avenue #7-FManhattan, NY
$2,860
Studio•1 bath•Est. Jan 2026
Future
Rent-stabilized
4.7(4)
Lenox Hill
503 East 78 Street #2GManhattan, NY
$2,849
Studio•1 bath•Est. Jan 2026
Future
Rent-stabilized
4.5(2)
Lenox Hill
350 East 76 Street #5DManhattan, NY
$2,789
Studio•1 bath•Est. Jan 2026
Future
Top rated
4.4(10)
Lenox Hill
523 East 78 Street #4FManhattan, NY
$2,759
Studio•1 bath•Est. Jan 2026
Future
Rent-stabilized
2.9(2)
Lenox Hill
504 East 79 Street #4FManhattan, NY
$2,759
Studio•1 bath•Est. Jan 2026
Future
Rent-stabilized
3.2(5)
Lenox Hill
542 East 79 Street #1KManhattan, NY
$2,759
Studio•1 bath•Est. Jan 2026
Future
Rent-stabilized
3.6(2)
Lenox Hill
441 East 76 Street #3BManhattan, NY
$2,750
Studio•1 bath•Est. Jan 2026
Future
Rent-stabilized
4.6(4)
Lenox Hill
516 East 79 Street #4BManhattan, NY
$2,728
Studio•1 bath•Est. Jan 2026
Future
Rent-stabilized
3.2(5)
Lenox Hill
542 East 79 Street #5HManhattan, NY
$2,698
Studio•1 bath•Est. Jan 2026
Future
Rent-stabilized
4.7(2)
Lenox Hill
301 East 63 Street #2HManhattan, NY
$3,410
Studio•1 bath•Est. Feb 2026
Future
Rent-stabilized
4.1(6)
Lenox Hill
524 East 79 Street #6HManhattan, NY
$3,019
Studio•1 bath•Est. Feb 2026
Future
Rent-stabilized
4.3(9)
Lenox Hill
513 East 78 Street #4DManhattan, NY
$2,988
Studio•1 bath•Est. Feb 2026
Future
Rent-stabilized
3(1)
Lenox Hill
204 East 77 Street #6AManhattan, NY
$2,978
Studio•1 bath•Est. Feb 2026
Future
Rent-stabilized
3.3(2)
Lenox Hill
536 East 79 Street #4BManhattan, NY
$2,859
Studio•1 bath•Est. Feb 2026
Future
Rent-stabilized
4.3(9)
Lenox Hill
513 East 78 Street #1EManhattan, NY
$2,783
Studio•1 bath•Est. Feb 2026
Future
Rent-stabilized
4.2(9)
Lenox Hill
415 East 73 Street #1FManhattan, NY
$2,714
Studio•1 bath•Est. Feb 2026
Future
Rent-stabilized
3.5(3)
Lenox Hill
1420 York Avenue #6-FManhattan, NY
$3,520
Studio•1 bath•Est. Mar 2026
Future
Rent-stabilized
3.3(2)
Lenox Hill
166 East 63 Street #3HManhattan, NY
$3,516
Studio•1 bath•Est. Mar 2026
Future
Rent-stabilized
4.3(2)
Lenox Hill
555 East 78 Street #1HManhattan, NY
$3,510
Studio•1 bath•Est. Mar 2026
Future
Rent-stabilized
4.9(1)
Lenox Hill
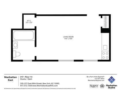
217 East 66 Street #103Manhattan, NY
$3,173
Studio•1 bath•Est. Mar 2026
Future
Rent-stabilized
4.2(9)
Lenox Hill
415 East 73 Street #1BManhattan, NY
$2,829
Studio•1 bath•Est. Mar 2026
Future
Rent-stabilized
3.3(1)
Lenox Hill
425 East 65 Street #3Manhattan, NY
$2,829
Studio•1 bath•Est. Mar 2026
Future
Good cause
4.3(1)
Lenox Hill
209 East 66 Street #101Manhattan, NY
$3,389
Studio•1 bath•Est. Apr 2026
Future
Rent-stabilized
3.3(3)
Lenox Hill
425 East 74 Street #2BManhattan, NY
$3,190
Studio•1 bath•Est. Apr 2026
Future
Good cause
2.1(1)
Lenox Hill
257 East 61 Street #2FManhattan, NY
$3,080
Studio•1 bath•Est. Apr 2026
Future
Rent-stabilized
3.2(4)
Lenox Hill
1427 York Avenue #4GManhattan, NY
$3,080
Studio•1 bath•Est. Apr 2026
Future
Rent-stabilized
4.1(6)
Lenox Hill
524 East 79 Street #2BManhattan, NY
$2,904
Studio•1 bath•Est. Apr 2026
Future
Rent-stabilized
3.2(2)
Lenox Hill
409 East 78 Street #3DManhattan, NY
$3,147
Studio•1 bath•Est. May 2026
Future
Good cause
3.2(3)
Lenox Hill
232 East 74 Street #4CManhattan, NY
$2,997
Studio•1 bath•Est. May 2026
Future
Rent-stabilized
3(3)
Lenox Hill
349 East 78 Street #4-AManhattan, NY
$2,887
Studio•1 bath•Est. May 2026
Future
Rent-stabilized
3.4(2)
Lenox Hill
330 East 74 Street #BManhattan, NY
$2,829
Studio•1 bath•Est. May 2026
Future
Rent-stabilized
3.8(3)
Lenox Hill
409 East 74 Street #5BManhattan, NY
$2,803
Studio•1 bath•Est. May 2026
FAQ's