According to NYC law, you don't have to pay a broker fee unless you actually hired a broker.
Learn moreFuture listing
This apartment is not available yet, but it can be matched to you before it hits the market.
Good cause building
This building guarantees a lease renewal and caps rent increases, if you follow all the terms of your lease.
About this building
Battery Park City
250 South End Avenue, Manhattan, NY 10280
109 Units • 17 Floors
4.5(2)
Rent Stabilized Units: Unknown
Good Cause Eviction: Yes
Evictions: 0
Litigation History: No
1 Year Bedbug History: No
Have a question about this building? Ask current and former tenants what they think.
Questions are typically answered within 20 minutes. We'll notify you!
Description
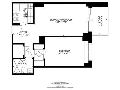
Luxury Big 804 square feet apartment with eastern light floods this spacious 1-bedroom apartment with 1.5 bath with jacuzzi and home office, This lovely home features entry foyer with half bath, lots of closet's space, recently renovated kitchen with granite counter tops, glass tile backslash, and stainless-steel appliances. Oversized windows look out over World Trade Center, Oculus, and city views of some the most architecturally interesting FiDi buildings. Laundry on every floor. The Hudson View East is a pet friendly, full-service condominium building. Amenities include 24-hour doorman, newly renovated Zen-like, common garden with soothing waterfall, BBQ's for grilling and entertaining, storage and bike room. Conveniently located to the nearby Hudson River Park, Rector Park shops, restaurants, Whole Foods, Financial District, Brook field Place, Equinox Gym, Le District and major transportation. Only 20 minutes by 1, 2, 3 to Times Square, 4, 5 to Grand Central, R to 34th Street. M20 Bus to Lincoln Center and M9 Bus to Bellevue and New York University Hospital and Free Connection Bus
Searching for an apartment for rent in Manhattan, New York City?
Explore tenant reviews and building data for 250 South End Avenue #12E in Battery Park City. See pricing history, violations, landlord info, and more before you rent.
Amenities
Building amenities
Unit amenities
Policies
Building Insights
Check if this building has infestation issues and make the right choice.
Most Recent Rodent Inspections for 250 South End Avenue
This building had reported rodent activity at the last rodent inspection.
Inspection History From The Past 6 Months for 250 South End Avenue
Rat Activity
FILE DATE:
Aug 28, 2024
Read full history
Listing History
Explore Battery Park City
Loading...
Similar Listings
Verified
Rent-stabilized
4.4(7)
Battery Park City
70 Battery Place #410Manhattan, NY
$4,499
1 bed•1 bath•Avail. Immediately
Future
Rent-stabilized
3.6(30)
Battery Park City
375 S End Ave #12HManhattan, NY
$5,266
1 bed•1 bath•Est. Dec 2025
Future
Good cause
4.4(1)
Battery Park City
345 South End Avenue #7DManhattan, NY
$5,133
1 bed•1 bath•Est. Dec 2025
Future
Rent-stabilized
4(18)
Battery Park City
395 South End Avenue #9DManhattan, NY
$5,087
1 bed•1 bath•Est. Dec 2025
Future
Top rated
4.8(10)
Battery Park City
99 Battery Place #23BManhattan, NY
$4,960
1 bed•1 bath•Est. Dec 2025
Rent-stabilized
4.4(7)
Battery Park City
70 Battery Place #312Manhattan, NY
$4,800
1 bed•1 bath•Avail. Dec 20, 2025
Future
Top rated
4.8(10)
Battery Park City
99 Battery Place #24KManhattan, NY
$4,608
1 bed•1 bath•Est. Dec 2025
Rent-stabilized
4.4(7)
Battery Park City
70 Battery Place #912Manhattan, NY
$4,500
1 bed•1 bath•Avail. Immediately
Rent-stabilized
4.4(7)
Battery Park City
70 Battery Place #306Manhattan, NY
$4,500
1 bed•1 bath•Avail. Dec 20, 2025
Rent-stabilized
4.4(7)
Battery Park City
70 Battery Place #719Manhattan, NY
$4,999
1 bed•1 bath•Avail. Jan 25, 2026
Future
Rent-stabilized
3.6(30)
Battery Park City
375 S End Ave #28KManhattan, NY
$4,712
1 bed•1 bath•Est. Jan 2026
Rent-stabilized
4.4(7)
Battery Park City
70 Battery Place #611Manhattan, NY
$4,250
1 bed•1 bath•Avail. Jan 05, 2026
Future
Good cause
4.5(9)
Battery Park City
200 Rector Place #33LManhattan, NY
$4,966
1 bed•1 bath•Est. Feb 2026
Future
Rent-stabilized
4.9(1)
Battery Park City
300 Rector Place #4-MManhattan, NY
$4,944
1 bed•1 bath•Est. Feb 2026
Future
Good cause
4.5(9)
Battery Park City
200 Rector Place #16DManhattan, NY
$4,851
1 bed•1 bath•Est. Feb 2026
Future
Good cause
3.4(11)
Battery Park City
355 South End Avenue #17EManhattan, NY
$4,839
1 bed•1 bath•Est. Feb 2026
Future
Good cause
3.4(11)
Battery Park City
355 South End Avenue #33MManhattan, NY
$4,816
1 bed•1 bath•Est. Feb 2026
Future
Rent-stabilized
4(18)
Battery Park City
395 South End Avenue #14EManhattan, NY
$4,591
1 bed•1 bath•Est. Feb 2026
Future
Good cause
2.9(1)
Battery Park City
21 South End Avenue #534Manhattan, NY
$4,729
1 bed•1 bath•Est. Mar 2026
Future
Good cause
Battery Park City
450 North End Avenue #11MManhattan, NY
$5,815
1 bed•1 bath•Est. Apr 2026
Future
Rent-stabilized
4.8(8)
Battery Park City
225 Rector Place #11JManhattan, NY
$5,601
1 bed•1 bath•Est. Apr 2026
Future
Rent-stabilized
4.8(8)
Battery Park City
225 Rector Place #11CManhattan, NY
$5,280
1 bed•1 bath•Est. Apr 2026
FAQ's